h2 prefab
HOME
MODELS
PRICING
GALLERY
ADU INFO
CONTACT
HOME
MODELS
PRICING
GALLERY
ADU INFO
CONTACT
h2 prefab
building smarter.
BACK
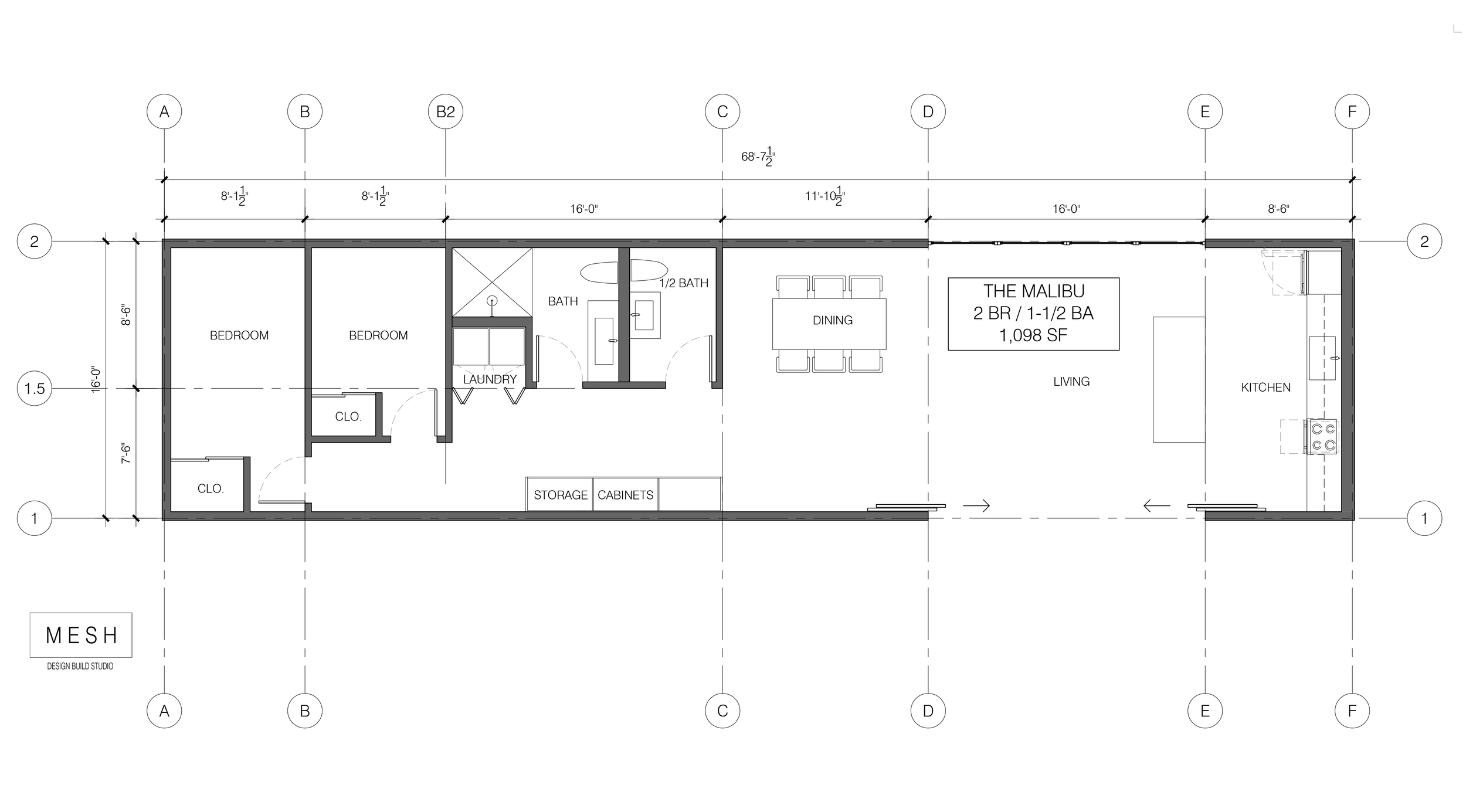
THE MALIBU
TWO BEDROOM ADU UNIT
1,098 SF
FULL KITCHEN. 1.5 BATH.
View fullsize
View fullsize